Berkshire Organ Co., Inc.
Opus 104, 1979

Gustavus Adolphus Lutheran Church

155 East 22nd Street
New York City: Manhattan, NY, US

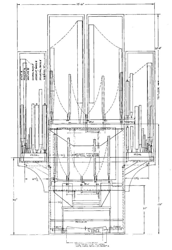
33 Ranks - 1,564 Pipes
Instrument ID: 4918 ● Builder ID: 548 ● Location ID: 4666
⬆️ These are database IDs that may change. Don't use as academic reference.EXPLORE IMAGESVIEW STOPLIST

Something not quite correct?Suggest an Edit

Plenum Organ Company

🤝 Instrument entries in New York sponsored by:

We are grateful for the generous support of our sponsors, who make it possible for us to continue our mission of preserving and promoting the rich history of pipe organs across the globe.

IMAGES

Category:
Only show images in a specific category ☝️

Something missing or not quite correct?Add ImageorSuggest an Edit

STOPLISTS

Selected Item:
View additional stoplist entries if they exist ☝️

Something missing or not quite correct?Add StoplistorSuggest an Edit

CONSOLES

Selected Item:
View additional console entries if they exist ☝️

Builder: Unknown
Position: Unknown
Design: Unknown
Pedalboard Type: Unknown
Features:
3 Manuals (56 Notes)30 Note Pedal4 Divisions23 Stops24 RegistersMechanical (Unknown) Key ActionElectrical Stop Action

Stop Layout: Unknown
Expression Type: Unknown
Combination Action: Unknown
Control System: Unknown or N/A

Something missing or not quite correct?Add ConsoleorSuggest an Edit

DETAILS

Switch between notes, documents, and blowers ☝️
This instrument is: Extant and Playable in this location

Database Manager on April 13th, 2018:
The Brust-Positiv was originally enclosed in a swell box with shutters, but a swell pedal was not provided; the organist had to physically move the shutters above the keydesk. At a later date the American Classic Organ Company enhanced the organ, adding an electric combination action and a swell pedal.

Database Manager on January 21st, 2011:
Updated through online information from Connor Annable.

Database Manager on March 12th, 2008:
Updated through online information from Larry Long.

Database Manager on October 30th, 2004:
Status Note: There 1979

Database Manager on October 30th, 2004:
Manual I is coupling manual

Webpage Links: Gustavus Adolphus Lutheran Church

Something missing or not quite correct?Add NoteorAdd WebpageorAdd Cross ReferenceorSuggest an Edit

Pipe Organ Database

A project of the Organ Historical Society